Naše firma se specializuje především v
  projekční činnosti v odvětví elektro :
 
    Potravinářský průmysl
    Stavební průmysl
    Jednoúčelové stroje
    Radiotelekomunikace
    Fotovoltaika
    Regulační jednotka
    Solární ventilační panel
   
   

   
   
   
   
ÚVOD REFERENCE KONTAKT
AS-ELEKTRO AS-ELEKTRO AS-ELEKTRO AS-ELEKTRO AS-ELEKTRO AS-ELEKTRO tenisový kurt Komárov
 
Energetický regulační úřad koncem listopadu zveřejnil cenové rozhodnutí na rok 2009 ...
 
 

 

      FOTOVOLTAIKA :
   
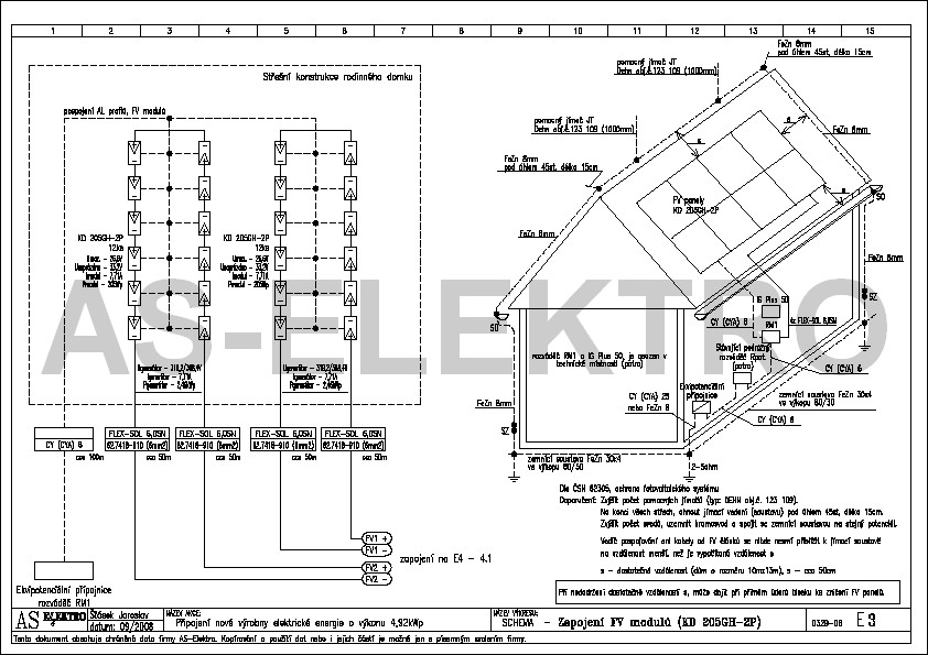
  Od roku 2006 se také zabýváme projektováním a realizacemi fotovoltaických systémů a elektráren (FVS, FVE)
  dodávkami fotovoltaických panelů a komponentů
  řešením napájení průmyslových aplikací i elektrifikací míst bez elektrické energie.
  zpracování projektové dokumentace všech stupňů, od územního rozhodnutí až k realizační dokumentaci
  zpracování rozpočtů a specifikací
  poradenství a technická podpora
   
 

 

 

Fotovoltaika (FV) je obor, který se zabývá přímou přeměnou slunečního záření na elektrickou energii. Už sám název složený ze slov "foto" a "volt" odkazuje na vazbu mezi světlem a elektřinou. Sluneční energie dopadající na zem představuje celkem asi 1 540 000 000 000 000 000kwh/rok. To je15000krát více, než celosvětová spotřeba proudu. Sluneční paprsek se skládá z nepředstavitelně malých částic fotonů. Je nutné si uvědomit, že fotovoltaika je dynamicky se rozvíjející odvětví na světě. V roce 1997 byl meziroční nárůst dodávek 38%. Průměrný roční nárůst od roku 1990 je 15%. Fotovoltaiku objevil Alexander v Edmond Becquerel roce 1839. V roce 1958 se poprvé použilo fotovoltaických článků pro výrobu energie v kosmických programech a od té doby se staly jejich nedílnou součástí  

 

   
     
  1. Solární články

 
  2. Fotovoltaický modul  
  3. Tenkovrstvé články  
  4. Měnič  
  5. Druh připojení  
  6. Výkupní cena  
  7. Odhad výrobny z fotovoltaického systému  
  8. Žádosti  
  9. Podmínky připojení  
     

 
      ukázka projektové práce :
 
    
 
    
 
 

© AS-Elektro 2009 - all rights reserved

[CNW:Counter]